产品中心
product center-
气象环境监测
-
水文地质监测
-
水质污水监测
-
植保仪器设备
-
公路交通监测
-
光伏辐射监测
-
大气环保监测
-
生化病毒检测
推荐文章
联系我们
山东雷穹电子科技有限公司
销售电话:15863691020
销售QQ:1379335561
公司地址:山东省潍坊市高新区光电路155号光电产业加速器(一期)
更新时间:2026-04-16
裂缝监测站
【产品简介】一、裂缝监测站产品简介本产品广泛应用于地质灾害、岩土工程、建筑工程、交通、水利、市政等多个监测领域,特别适用于地表裂缝、卸荷裂隙、房屋或结构裂缝等相对位移的精确监测。在地质灾害监测···
- 型号
- LQ-LFZ1
- 品牌
- 雷穹
- 价格
- 电议优惠
- 产品简介
- 详情图片
- 相关产品
一、裂缝监测站产品简介
本产品广泛应用于地质灾害、岩土工程、建筑工程、交通、水利、市政等多个监测领域,特别适用于地表裂缝、卸荷裂隙、房屋或结构裂缝等相对位移的精确监测。
在地质灾害监测中,能够实时捕捉地表裂缝的微小变化,为滑坡、崩塌等灾害预警提供关键数据;在岩土工程中,可有效监测卸荷裂隙的发展趋势,确保工程安全;
在建筑工程领域,能够精准检测房屋或结构裂缝的位移情况,为建筑物的健康诊断和维护提供科学依据;
在交通、水利和市政工程中,同样能够发挥重要作用,确保基础设施的长期稳定运行。
通过高精度的监测数据,帮助用户及时采取应对措施,降低风险,保障工程和人员安全。
二、裂缝监测站技术参数
| 量程 | 0-1000mm |
| 精度 | ±0.02%F.S |
| 响应时间 | 1s |
| 外壳材质 | ABS |
| 供电电压 | 12-24VDC(0.4W@12V) |
| 通讯方式 | modbus-485 |
| 太阳能板功率 | 8W |
| 太阳能板标准工作电压 | DC5V |
| 内置锂电池容量 | 5000mAh |
| 支架材质 | 不锈钢 |
| 采集器 | 带3年流量 |
| 数据传输 | 标配每10分钟传输一次,支持定制 |
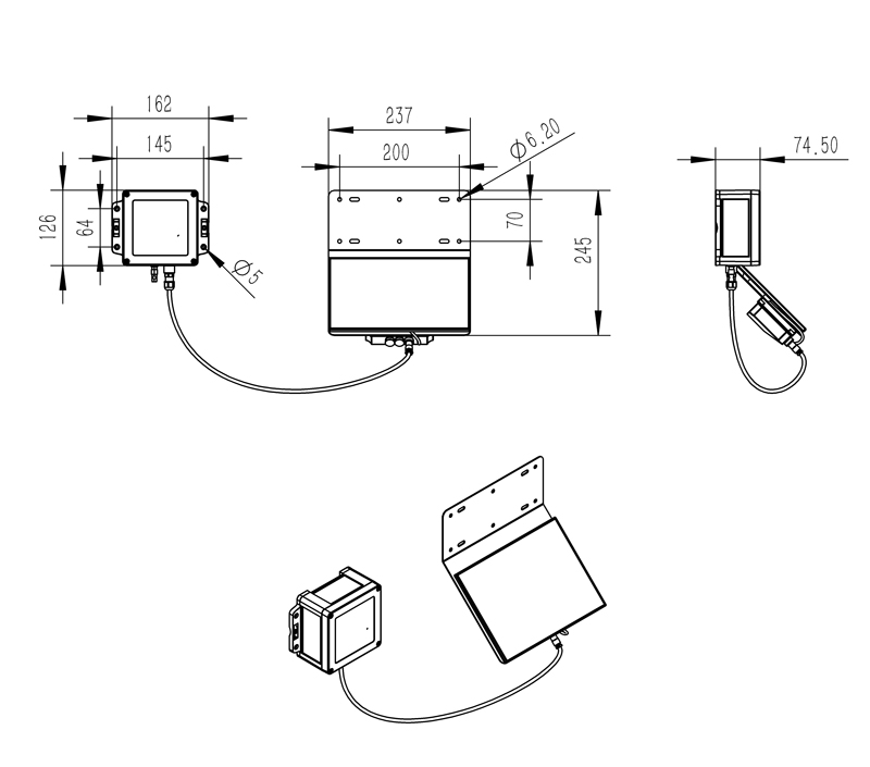
三、裂缝监测站产品尺寸图

本文地址:https://www.sdlqdz.com/dzchjc/2737.html











